Dark St Lane, Plymouth

Price £425,000 - Under Offer


  • Extended Five Bed semi Detached Home
  • Westerly Facing Garden
  • Master Bedroom With En Suite
  • Open Plan Kitchen Diner
  • Conservatory
  • Two Reception Rooms
  • W/C & Utility Room
  • Family Bathroom
  • Off Road Park For Five Vehicles
  • No Onward Chain

Impressive Extended Five Bedroom Semi Detached Home Prime Location No Onward Chain

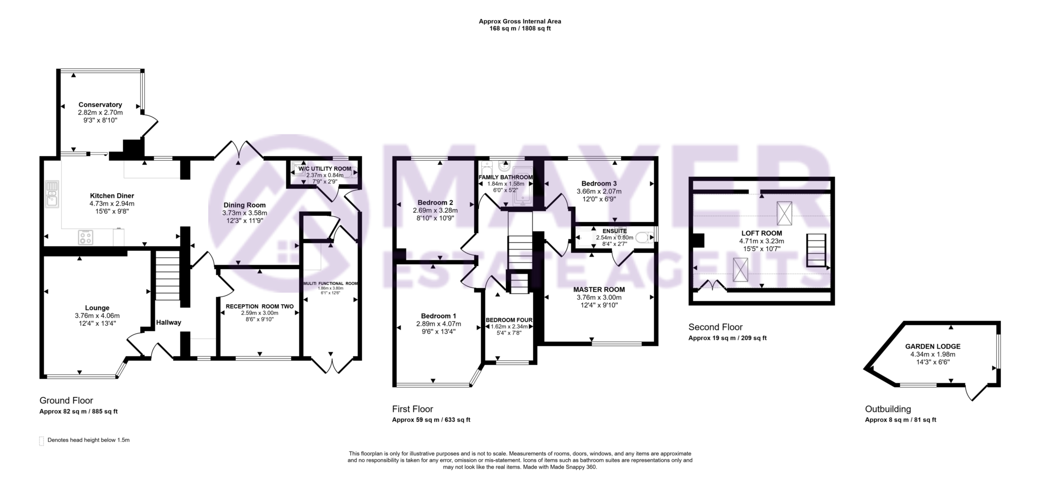
Situated in a highly sought after location close to Ridgeway High Street and a wide range of local amenities, this impressive and substantially extended five bedroom semi-detached home offers generous and flexible accommodation ideal for modern family living.

The property is approached via a concrete driveway providing off road parking for multiple vehicles. Entry is via a uPVC front door into a spacious and light filled entrance hall, which offers access to the ground floor living accommodation and stairs ascending to the first floor. The hallway also benefits from an obscured uPVC double glazed window to the front elevation and space for an under counter condenser tumble dryer.

The main lounge is a well proportioned reception room featuring a half bay window to the front elevation, allowing plenty of natural light. A second reception room provides excellent versatility and could easily be used as a ground floor bedroom if required.

To the rear, the open plan kitchen and dining area creates a fantastic space for both everyday family life and entertaining. The kitchen is fitted with a comprehensive range of wall and base units, integrated oven with inset induction hob and extractor, decorative splashback, matt black sink and drainer with mixer tap, integrated dishwasher, breakfast bar, and space for a large American style fridge freezer. The kitchen also provides access into the conservatory.

The dining area offers ample space for a large dining table and features a cupboard housing the wall mounted combi boiler, doors opening onto the west facing rear garden, and access to a ground floor WC utility room. The WC utility comprises a low level WC, countertop sink with mixer tap, chrome heated towel rail, wall mounted storage cupboard, plumbing for a washing machine, and an obscured window to the side rear elevation.

A further multi functional room with power and lighting and uPVC French doors to the front elevation offers excellent flexibility and could be used as a home office, workshop, studio, or hobby room.

To the first floor, the master bedroom is positioned to the front of the property and benefits from a uPVC double glazed window and an ensuite shower room comprising a low level WC, wash hand basin with mixer tap, tiled splashback, and a shower cubicle with mains fed shower.

Bedroom one is also located to the front elevation with a uPVC double glazed window. Bedroom two and bedroom three are positioned to the rear, both enjoying views over the garden and beyond. Bedroom four is to the front of the property and features a uPVC double glazed window along with paddle stairs providing access to the loft room.

The loft room offers useful additional space with storage within the eaves, Velux windows, and central spotlighting, making it suitable for a variety of uses.

The family bathroom comprises a close coupled WC, vanity wash hand basin with mixer tap, Japanese style omni tub with mains fed shower over, and an obscured uPVC double glazed window to the rear elevation.

Externally, the west facing rear garden enjoys sunlight for the majority of the day. The garden is mainly laid to lawn with an additional decked area designed to capture the morning sun. Further features include an external water tap with Belfast sink, two external power points, and well stocked garden beds with a colourful selection of bulbs and perennial plants, designed for low maintenance while providing year round interest.

The garden also benefits from an insulated garden lodge with power and lighting, as well as a fireplace suitable for a small log burner, offering excellent potential as a home office, studio, or relaxation space.

The conservatory enjoys pleasant views over the rear garden, with windows to the rear and side elevations, doors opening onto the decked area, and a wall mounted radiator allowing for year round use.

Offered to the market with no onward chain, this truly is a must view home to fully appreciate the size, flexibility, and quality of accommodation on offer.

Early viewing is highly recommended. Contact us today to avoid missing out on this impressive family home.



Council Tax
Plymouth City Council, Band C

Notice
Please note we have not tested any apparatus, fixtures, fittings, or services. Interested parties must undertake their own investigation into the working order of these items. All measurements are approximate and photographs provided for guidance only.


/// funds.others.rail is the what3words address for the best entrance. what3words has given every 3 metre square in the world a unique combination of 3 random words.

Floor Plan
EER Chart

The Energy-Efficiency Rating is a measure of a home's overall efficiency. The higher the rating, the more energy-efficient the home is, and the lower the fuel bills are likely to be.

Utility Supply Type
Electric Mains Supply
Gas Mains Supply
Water Mains Supply
Sewerage Mains Supply
Broadband Unknown
Telephone Unknown

Other Items Description
Heating Gas Central Heating
Garden/Outside Space Yes
Parking Yes
Garage No

Broadband Coverage Highest Available Download Speed Highest Available Upload Speed
Standard 17 Mbps 1 Mbps
Superfast 80 Mbps 20 Mbps
Ultrafast 1000 Mbps 100 Mbps

Mobile Coverage Indoor Voice Indoor Data Outdoor Voice Outdoor Data
EE Enhanced Enhanced Enhanced Enhanced
Three Enhanced Enhanced Enhanced Enhanced
O2 Enhanced Likely Enhanced Enhanced
Vodafone Likely Likely Enhanced Enhanced

Broadband and Mobile coverage information supplied by Ofcom.


marker icon