Cresthill Road, Plymouth

OIEO £430,000 - Under Offer


  • 3/4 Bedroom Property
  • Lovingly Enhanced with No Expense Spared
  • Stunning Kitchen/Diner Entertaining Space
  • Family Room & Separate Lounge
  • Utility & Cloakroom
  • Two Ensuites & Family Shower Room
  • Lovely Cul De Sac Location
  • Extended to the Rear & Into the Loft Space
  • Fantastic Family Home
  • South Westerly Facing Garden

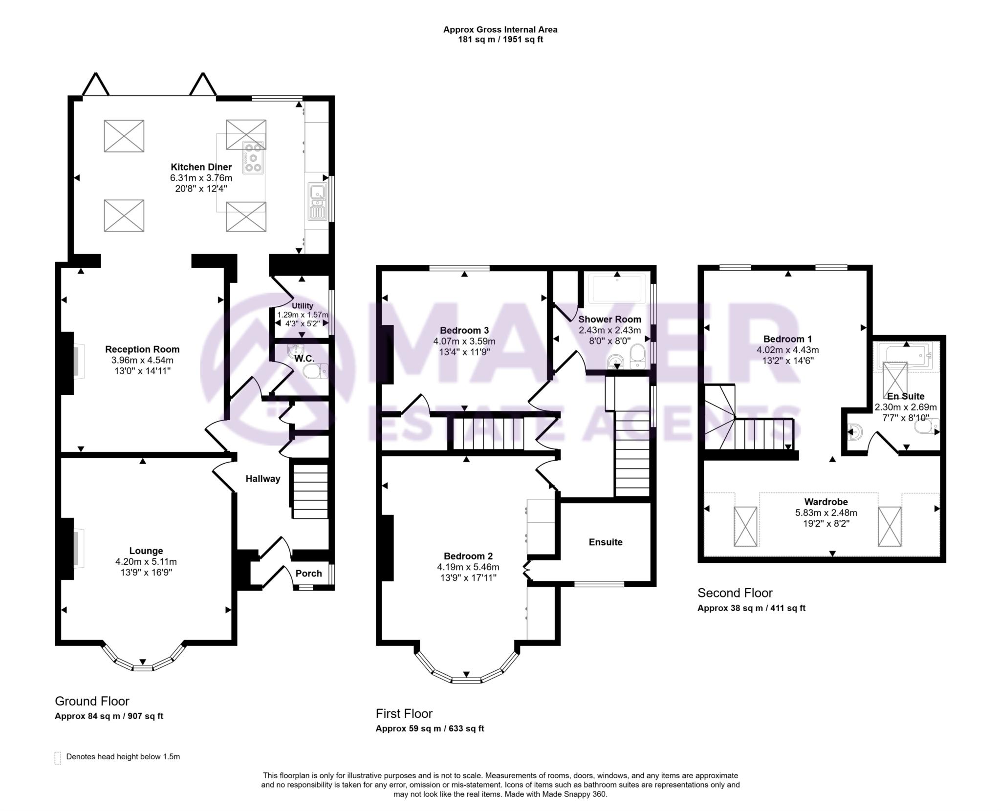
A truly outstanding home on the highly sought-after Cresthill Road in Beacon Park, this beautifully extended residence delivers luxury, space and sophistication in every detail. Lovingly enhanced with no expense spared, the property showcases a show-stopping kitchen/diner stretching across the rear designed to frame the private south-west facing garden and offer an exceptional social and family entertaining space.

The ground floor continues to impress with a separate utility room, downstairs cloakroom, and two further reception rooms perfectly suited as a relaxed family room and an elegant formal lounge for evening unwinding.

On the first floor are two generous double bedrooms, a stylish family bathroom, and an ensuite to bedroom two, previously the third bedroom. Rising again, the top level reveals a magnificent private suite: an expansive bedroom area complimented by a chic dressing or chill-out zone and a contemporary ensuite shower room. This serene space provides the ideal retreat at the end of a long day.

Externally, the property enjoys a peaceful cul-de-sac setting with easy access to excellent schools and local amenities. The driveway accommodates two cars, while the beautifully arranged south-westerly garden offers a superb backdrop for summer living, featuring a hot tub, a spacious patio for alfresco dining, and a manicured stretch of lawn.

A luxurious and beautifully curated home one that is sure to impress anyone seeking space, style and exceptional quality.



Directions
Please contact the office for directions

Council Tax
Plymouth City Council, Band C

Notice
Please note we have not tested any apparatus, fixtures, fittings, or services. Interested parties must undertake their own investigation into the working order of these items. All measurements are approximate and photographs provided for guidance only.


/// thin.strut.unit is the what3words address for the best entrance. what3words has given every 3 metre square in the world a unique combination of 3 random words.

Floor Plan
EER Chart

The Energy-Efficiency Rating is a measure of a home's overall efficiency. The higher the rating, the more energy-efficient the home is, and the lower the fuel bills are likely to be.

Utility Supply Type
Electric Mains Supply
Gas Mains Supply
Water Mains Supply
Sewerage Mains Supply
Broadband Unknown
Telephone Unknown

Other Items Description
Heating Gas Central Heating
Garden/Outside Space Yes
Parking Yes
Garage No

Broadband Coverage Highest Available Download Speed Highest Available Upload Speed
Standard 7 Mbps 0.8 Mbps
Superfast 60 Mbps 17 Mbps
Ultrafast 1800 Mbps 220 Mbps

Mobile Coverage Indoor Voice Indoor Data Outdoor Voice Outdoor Data
EE Likely Likely Enhanced Enhanced
Three Likely Likely Enhanced Enhanced
O2 Enhanced Likely Enhanced Enhanced
Vodafone Enhanced Enhanced Enhanced Enhanced

Broadband and Mobile coverage information supplied by Ofcom.


marker icon